El modelo MÜV-A5 forma parte de la serie “A” de MÜV, orientada a soluciones modulares de diseño minimalista y contemporáneo, ideales para viviendas compactas de alto nivel, alojamientos boutique, glamping o como unidad complementaria en residencias.
Su arquitectura destaca por líneas limpias, grandes ventanales y una estructura optimizada para transporte e instalación rápida.
Posee una longitud de 9,50 m, ancho de 3,30 m, altura de 3,30 m, superficie construida aproximada de 31 m² y un peso neto cercano a 7-8 toneladas.
Dimensiones y datos clave
Exterior: 9,50 m de largo × 3,30 m de ancho × 3,30 m de alto.
Superficie construida: aproximadamente 31 m².
Peso neto: ~7-8 toneladas.
Ocupación estimada: 2 a 4 personas.
Capacidad de climatización: adaptable a sistemas tipo split inverter o calefacción radiante.
Estructura, envolvente y materiales
Estructura principal de acero galvanizado de alta resistencia.
Revestimiento exterior en aluminio fluorocarbonado (PVDF) combinado con grandes ventanales de vidrio templado.
Aislamiento térmico y acústico integrado de fábrica.
Diseño modular optimizado para transporte internacional y montaje rápido.
Acabados e interior
El MÜV-A5 se entrega completamente equipado desde fábrica, con todas las instalaciones eléctricas, sanitarias y de climatización integradas.
Su interior mantiene la línea minimalista y funcional característica de la serie “A”:
Revestimientos interiores lisos y materiales de alta calidad.
Piso SPC o composite resistente a la humedad.
Baño completo con vanitory, grifería y mampara.
Cocina compacta con mesada, bacha y grifería.
Iluminación LED ambiental y cortinas tipo blackout.
Usos recomendados
Vivienda modular compacta o segunda residencia.
Alojamiento boutique, glamping o resort de diseño.
Guest-house o espacio adicional en viviendas premium.
Instalaciones desmontables o semi-permanentes con rápida instalación.
Ventajas clave
Diseño minimalista y elegante, con gran superficie vidriada.
Montaje rápido y listo para habitar.
Alta eficiencia térmica y energética.
Flexibilidad de uso y posibilidad de personalización.
Bajo mantenimiento y durabilidad estructural prolongada.
El modelo MÜV-A5 representa una solución modular de lujo en formato compacto, que combina diseño arquitectónico minimalista, materiales industriales de alta calidad y habitabilidad inmediata.
Con cerca de 32 m² de superficie útil, estructura galvanizada y envolvente de aluminio y cristal, es una unidad premium lista para habitar, ideal para el mercado argentino de viviendas modulares y desarrollos turísticos de diseño.
MÜV - 20
Experimenta la vida modular

Aberturas con doble vidrio
Puertas y ventanas de aluminio tipo “broken bridge” doble vidrio.

Cerraduras electrónicas inteligentes
Acceso a las habitaciones y sistema eléctrico completo (220V – 50Hz).

Baño totalmente equipado
Mampara de vidrio, inodoro inteligente y grifería de alta calidad.

Formato modular expandible
Fácil transporte y despliege. Optimiza espacio, tiempos y logística.




MUVHAUS
Sistema de Aberturas
Puertas de Aluminio
Puertas de aluminio con doble vidrio, pensadas como acceso principal, que aportan hermeticidad, presencia y mayor aislación.
Ventana Batientes
Ventana proyectante que permiten ventilación controlada, manteniendo seguridad y protección frente a la intemperie.
Herrajes y Cerraduras Premium
Herrajes y cerraduras de alta calidad que aseguran seguridad, durabilidad y un uso confiable en el tiempo.
MUVHAUS POR DENTRO
Recorrido interior
Interior totalmente desplegada, donde se destaca la amplitud del living comedor, la distribución funcional y la luminosidad natural. Los pisos SPC de alto tránsito, las paredes con terminación premium, la iluminación LED empotrada y el mobiliario integrado reflejan un diseño moderno, cálido y eficiente.
Cada detalle está pensado para ofrecer confort real, durabilidad y habitabilidad inmediata, ideal tanto para vivienda permanente como para uso turístico. La sensación de espacio, orden y calidez transforma cada ambiente en un lugar para disfrutar sin límites.
Una casa lista para vivir, diseñada para acompañar proyectos de vida e inversión con calidad y estilo.
MUVHAUS 20
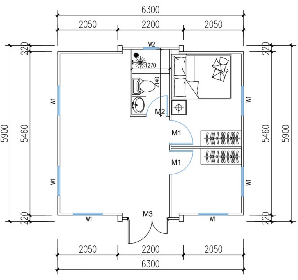
Plano Interior
CONTACTATE CON NOSOTROS
¡Invierte en el futuro de la vivienda!
Conéctate con nosotros por WhatsApp para obtener asistencia personalizada y explorar oportunidades innovadoras adaptadas a las necesidades de tu negocio.