MÜV - 40
Casa expandible premium personalizable.
Sueños mágicos sobre las estrellas.
Moderna, funcional y de instalación inmediata
Ideal para proyectos residenciales, turísticos o de emergencia. Su innovador sistema plegable permite un transporte ágil y seguro, alcanzando una superficie total de 73 m² una vez desplegada, con un amplio living, un baño completo y tres dormitorios perfectamente distribuidos para maximizar el confort y la habitabilidad.
Construida sobre una estructura galvanizada de alta resistencia, la MÜV-40 combina materiales duraderos con una estética contemporánea y refinada. Integra revestimientos interiores de categoría premium, piso SPC de piedra plástica de 4 mm de alto tránsito, y placas de fibrocemento ignífugo, que aportan solidez estructural, durabilidad y seguridad. Su sistema de aislamiento térmico y acústico garantiza un ambiente confortable y eficiente en cualquier estación del año.
MÜV - 40
Experimenta la vida modular

Aberturas con doble vidrio
Puertas y ventanas de aluminio tipo “broken bridge” doble vidrio.

Cerraduras electrónicas inteligentes
Acceso a las habitaciones y sistema eléctrico completo (220V – 50Hz).

Baño totalmente equipado
Mampara de vidrio, inodoro inteligente y grifería de alta calidad.

Formato modular expandible
Fácil transporte y despliege. Optimiza espacio, tiempos y logística.




MUVHAUS
Sistema de Aberturas
Puertas de Aluminio
Puertas de aluminio con doble vidrio, pensadas como acceso principal, que aportan hermeticidad, presencia y mayor aislación.
Ventana Batientes
Ventana proyectante que permiten ventilación controlada, manteniendo seguridad y protección frente a la intemperie.
Herrajes y Cerraduras Premium
Herrajes y cerraduras de alta calidad que aseguran seguridad, durabilidad y un uso confiable en el tiempo.
MUVHAUS POR DENTRO
Recorrido interior
Interior totalmente desplegada, donde se destaca la amplitud del living comedor, la distribución funcional y la luminosidad natural. Los pisos SPC de alto tránsito, las paredes con terminación premium, la iluminación LED empotrada y el mobiliario integrado reflejan un diseño moderno, cálido y eficiente.
Cada detalle está pensado para ofrecer confort real, durabilidad y habitabilidad inmediata, ideal tanto para vivienda permanente como para uso turístico. La sensación de espacio, orden y calidez transforma cada ambiente en un lugar para disfrutar sin límites.
Una casa lista para vivir, diseñada para acompañar proyectos de vida e inversión con calidad y estilo.
MUVHAUS 40
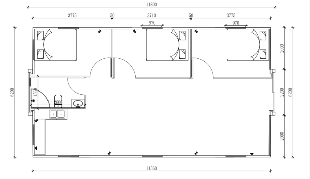
Plano Interior
CONTACTATE CON NOSOTROS
¡Invierte en el futuro de la vivienda!
Conéctate con nosotros por WhatsApp para obtener asistencia personalizada y explorar oportunidades innovadoras adaptadas a las necesidades de tu negocio.